Skip to main content

Prazeres, Madeira

  • Kaufpreis in €:
    1.800.000
  • Schlafzimmer:
    4
  • Bäder:
    4
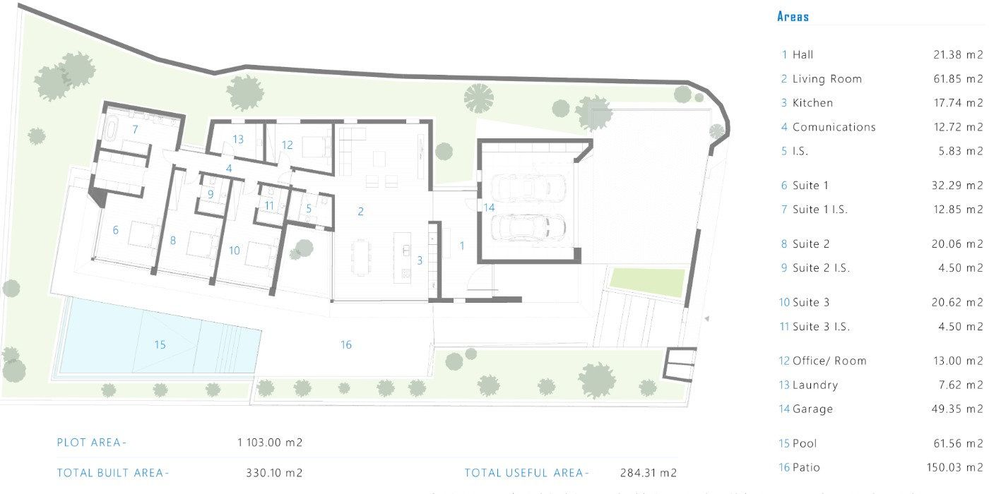
  • Wohnfläche qm:
    284
  • Grundstück qm:
    1.103
  • Objektnummer:
    M514

Erstklassige Neubauvilla in einzigartiger Lage

Erleben Sie modernen und minimalistischen Wohnstil in diesem luxuriösen Stadthaus T3 +1, das sich derzeit in der Bauphase befindet und in Prazeres, Calheta, gelegen ist. Dieses exquisite Anwesen, das sich auf nur einer Etage erstreckt, besticht durch großzügige und lichtdurchflutete Räume. Das Innere der Villa ist in zwei klar getrennte Bereiche unterteilt: Der private Bereich umfasst drei Suiten und ein Büro, während der Wohnbereich im offenen Raumkonzept die voll ausgestattete Küche, den Essbereich und das Wohnzimmer beherbergt. Ergänzt wird dieser Bereich durch ein Gäste-WC. Die Villa ist mit Klimaanlage und einem individuellen Soundsystem in jedem Zimmer ausgestattet.
Eine Vorinstallation für Alarm- und Videoüberwachungssysteme ist ebenfalls vorhanden. Höchste Qualität der Materialien und Ausführungen prägen das Design dieses einzigartigen Hauses. Ein Highlight ist die geräumige Garage, die Platz für drei Autos bietet. Der Außenbereich zeichnet sich durch einen wunderschönen Garten und einen blauen Pool aus, die eine perfekte Harmonie mit der Umgebung schaffen. Die gesamte Immobilie profitiert von einer ausgezeichneten Sonneneinstrahlung und bietet einen atemberaubenden Meerblick. Käufer haben die Möglichkeit, während der Bauphase die Materialien für die Ausführungen dieser prächtigen und einzigartigen Villa selbst auszuwählen. Zögern Sie nicht, uns für weitere Informationen oder zur Vereinbarung eines Besichtigungstermins zu kontaktieren.

Ausstattung:

Meerblick
Einbauküche
Garten
Terrasse
Pool
BBQ/Außenküche
Ankleide
Stellplatz
Garage
Klimaanlage
Gegensprechanlage
Internet
Prazeres Church, Madeira
Levada Way in Prazeres, Madeira

Der Ort Prazeres

Die Gemeinde von Prazeres ist eine ruhige Wohngegend der seinem Namen, der ins Englische übersetzt "Pleasures" also Vergnügen bedeutet, gerecht wird. Für Touristen und Bewohner, die sich einen entspannten Urlaub wünschen, ist der Ort ein Paradies. Das milde Klima, die Schönheit der Ausblicke und die gute Qualität der Restaurants machen Prazeres zu einem beliebten Ausflugsort. Wenn Sie gerne wandern gehen, dürfen Sie die schönen Levadas von Prazeres nicht verpassen. Innerhalb dieses kleinen charmanten Dorfes, neben der Dorfkirche, befindet sich eine kleine Farm mit einer Vielzahl von Tieren wie Schweinen, Ziegen, Truthähnen, Hühnern, Lamas und Eseln. An den Wochenenden begrüßen die Einheimischen Familien von der ganzen Insel, die auf dem Bauernhof vorbeikommen, um Kontakte zu knüpfen und sich vom Alltag abzulenken. Über das Jahr verteilt finden kleine Dorffeste statt, jedes mit einem anderen Thema, wie z.B. das Weizenfest, das Apfelweinfest und das Fest des Hahns.
Prazeres Church: Diese E-Mail-Adresse ist vor Spambots geschützt! Zur Anzeige muss JavaScript eingeschaltet sein., Levada: Diese E-Mail-Adresse ist vor Spambots geschützt! Zur Anzeige muss JavaScript eingeschaltet sein.
Rocky cliff on Madeira

Die folgenden Objekte könnten Sie auch interessieren:

Verpassen Sie nicht Ihr Traumhaus!

Sie erreichen uns unter ++49 173 4090805


Hinterlassen Sie uns Ihre Nachricht:


Datenschutzerklärung:

Für die Nutzung der von uns angebotenen Dienste werden persönliche Angaben wie Name und E-Mail-Adresse erhoben. Sie sind, als Inhaber der angegebenen E-Mail-Adresse, mit der Speicherung Ihrer Daten und dem Empfang von Zugangsdaten und weiteren Informationen wie Newslettern einverstanden. Ihre Daten werden nur für den Versand von Informationen an Sie verwandt und nicht an Dritte weitergegeben.

Sie können jederzeit Ihre erteilte Einwilligung zur Speicherung der Daten, der E-Mail-Adresse sowie deren Nutzung zum Versand von Informationen widerrufen. Hierzu lassen Sie uns bitte eine Nachricht an Diese E-Mail-Adresse ist vor Spambots geschützt! Zur Anzeige muss JavaScript eingeschaltet sein. zukommen.

Sunny-Island Logo

Wir sind eine deutsche Immobilienagentur auf Madeira. Unsere Mitarbeiter sprechen deutsch, englisch und portugiesisch


© Sunny Island LDA. All rights reserved. AMI Lizenz Nr. 19588